Translating ideas,
into buildable designs.

Experiential and spatial designer creating immersive environments, environmental graphics, and fabrication-ready installations.

Selected Works

Services

  • Floor plans, interiors, and exterior layouts for hospitality, food & beverage, retail, residential, and experiential environments.
    Emphasis on sightlines, circulation, flow, and narrative cohesion.

  • Stages, pop-ups, merchandising displays, event environments, and immersive art activations—crafted for emotional resonance and guest experience.

  • Bespoke design for furniture, lighting, ceramicware, art pieces, sculptural moments, and material-driven installations that extend the identity of the space.

  • Identity systems, wayfinding systems, signage, packaging, and visual storytelling that tie space, object, and brand into a unified language.

  • Product, spatial, and lifestyle photography, along with creative direction that articulates the atmosphere, materiality, and character of each project.

Spatial Design & Floorplan layouts

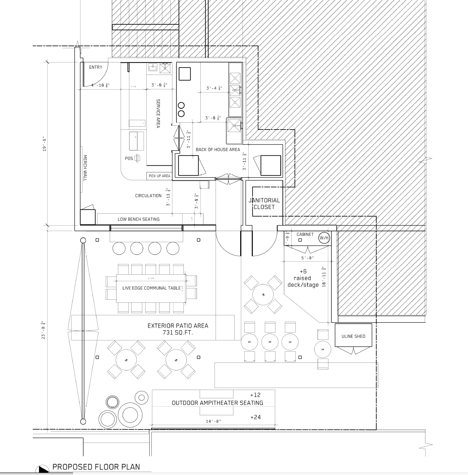
I craft floorplans and spatial layouts that merge functional clarity with narrative flow. Each plan is an intentional sequence—shaping circulation, anchoring sightlines, and guiding guests through a cohesive sensory and emotional journey. I apply this approach across hospitality, food and beverage, retail environments, residential neighborhoods, and immersive art activations.

Approach

  • Understanding Building and Zone Codes

  • Defining the Mood

  • Spatial Narrative Key Moments

  • Hand Sketched Bubble Diagrams

  • 2D CAD Layout Studies

  • 3D CAD Translation of Space

technical drawing

While I prefer to ideate and concept through a combination of handsketches and to site specific 3D modeling through Rhino, I develop my technical drawings through the knowledge of Rhino, Revit, and AutoCAD workflows optimizing for team integration.

Approach

  • Intentional hierarchies of focus

  • Integrated 3D + 2D diagramming

  • Thoughtful typographic systems

  • Expressive, material-driven line weights

  • Clear construction documentation

My drawings use adaptable layouts that support clean iteration and precise communication. Each sheet serves as a visual bridge between concept and construction—bringing teams into alignment around spatial intent, material logic, and the emotional atmosphere of a project before built environments.

branded spaces

I help brands translate identity into space—through environmental graphics, wayfinding, and cohesive visual systems while also providing documentation aligned with the visual language.

Approach

  • Interpret guest movement through space

  • Locate high-impact engagement moments

  • Embed brand identity into environments

  • Maintain legibility across viewing distances

  • Support efficient production and installation

PROJECTS

JUST A GIRL ,

TRAINED AS AN INDUSTRIAL DESIGNER

WITH A FOCUS IN SPATIAL EXPERIENCE DESIGN ,

ALWAYS CREATING .

CURRENTLY, IN THE PRACTICE OF CREATING

TRANSFORMATIVE EXPERIENCES,


FINDING PLEASURE IN DESIGNING HOMEGOODS & PRODUCING
ART-LIKE PHOTOGRAPHY

BASED IN LOS ANGELES, CA
BUT LOVE AN
ADVENTURER!


LET’S CO-CREATE SOMETHING MAGICAL

SPATIAL EXPERIENCE / SCENIC ACTIVATIONS

SET DESIGN & ART DEPARTMENT

HOSPITALITY DESIGN

ART DIRECTION & VISUALIZATION

PRODUCT DESIGN

ENVIRONMENTAL GRAPHICS

RHINOCEROS / REVIT / AUTOCAD

UNREAL ENGINE / ADOBE / FIGMA

HANDSKETCHING / RAPID PROTOTYPING


OH HEY! YOU’RE STILL HERE

YOU WANNA SEE MY ART?